Bifamiliare Fossò (Venezia)

icona Agenzia Ai Portici rif. F247
370.000,00
110 mq
2 bagni
3 camere

Caratteristiche principali

Tipo di offerta: Vendita
Anno di costruzione: 2026
Categoria immobile: Residenziale
Tipologia: Bifamiliare
MQ calpestabili: 110 mq

Descrizione dell'immobile

FOSSO' - PORZIONI DI BIFAMILIARE di nuova realizzazione che godono di un ingresso e un giardino totalmente indipendenti, inserite in un contesto tranquillo e poco trafficato ma allo stesso tempo comodo al centro del paese (circa 1km) e a soli 3km da Camponogara e Vigonovo

(Le foto indicano come verrà terminato esternamente l'immobile, fanno riferimento alla bifamiliare già finita della stessa impresa costruttrice)

COMPOSIZIONE:
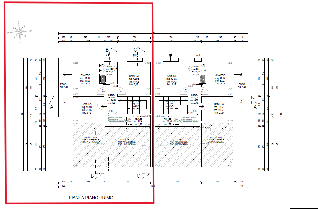
Le soluzioni si sviluppano su due piani e sono composte da: zona giorno open space di circa 40mq, 3 camere da letto + uno spazio sottotetto di circa 7mq, 2 bagni finestrati, un locale tecnico, poggiolo di circa 7mq e un garage doppio di 30mq riscaldato e collegato all'abitazione.

COMFORT E PLUS:
Pannelli fotovoltaici da 6kw, riscaldamento autonomo a pavimento, pompa di calore, cappotto, serramenti triplo-vetrocamera.

ALTRI DETTAGLI:
Consegna prevista per estate/fine 2027, a seconda dell'interesse. Classe energetica A4.

Riferimento F247
Unità "A" Euro 380.000
Unità "B" Euro 370.000

Info immobile

  • Aria condizionata
  • Riscaldamento autonomo
  • Giardino
  • Ingresso indipendente
  • Garage doppio
  • Riscaldamento a pavimento
  • Soggiorno con angolo cottura
  • Poggioli: 1
  • Piano terra
  • Primo piano
  • Totale piani: 2
  • Piano numero: 1
  • Predisposizione allarme
  • Pannelli fotovoltaici
  • Esposizione dell'immobile

    • Nord
    • Sud
    • Est
    • Ovest

Dati dell'immobile

  • 1063 mq
  • 2

Consumi energetici

  • Classe Energetica A4

Ubicazione dell'immobile

Nota: Per motivi di privacy, l'indirizzo e il puntatore nella mappa sono puramente indicativi e non corrispondono esattamente all'ubicazione dell'immobile.

Vuoi saperne di più rispetto a quest’immobile?

Compila questo modulo e un nostro consulente risponderà ai tuoi quesiti.

Telefono
+39 049 9704568

Dove trovare i nostri immobili

I nostri partner

  • Rice Box Poke
  • Brew - Caffetteria e Bakery
  • Chiara Mancin - Amministrazioni immobiliari
  • Beauty Studio - Celeste Borgato
  • Forno Zogno