Appartamento Camponogara (Venezia)

icona Agenzia Ai Portici rif. PODERE A2-PT
290.000,00
106 mq
2 bagni
3 camere

Caratteristiche principali

Tipo di offerta: Vendita
Anno di costruzione: 2025
Categoria immobile: Residenziale
Tipologia: Appartamento
MQ calpestabili: 106 mq

Descrizione dell'immobile

Prozzolo DI CAMPONOGARA - Soluzione unica nel suo genere: appartamento al piano terra con giardino e ingresso totalmente indipendenti inserito in un contesto di sole 5 unità.
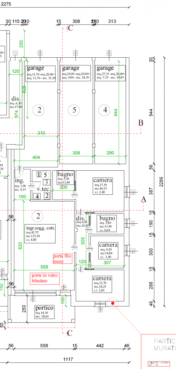
L'unità abitativa si sviluppa tutta su un piano ed è composta da ingresso + zona giorno di circa 50mq, 3 camere da letto (di cui 2 matrimoniali), 2 bagni e giardino privato di 250mq.
Al piano terra, collegato all'appartamento, è presente il garage di 30mq.
L'immobile è in posizione comoda al centro del paese, a soli 2km da Camponogara, ed è stato realizzato con le più moderne tecniche costruttive: riscaldamento a pavimento, pompa di calore, pannelli fotovoltaici e predisposizione per la domotica.
Classe energetica "A4"
Euro 290.000 - appartamento numero 2
Disponili nella stessa palazzina: Appartamento n.5 Euro 290.000 e Appartamento n.4 Euro 270.000
Riferimento: PODERE A2-PT

Planimetrie

Info immobile

  • Garage
  • Riscaldamento autonomo
  • Giardino
  • Ingresso indipendente
  • Riscaldamento a pavimento
  • Soggiorno con angolo cottura
  • Piano terra
  • Totale piani: 2
  • Predisposizione allarme
  • Pannelli fotovoltaici
  • Esposizione dell'immobile

    • Nord
    • Sud
    • Est

Dati dell'immobile

  • 250 mq
  • 1

Consumi energetici

  • Classe Energetica A4

Ubicazione dell'immobile

Nota: Per motivi di privacy, l'indirizzo e il puntatore nella mappa sono puramente indicativi e non corrispondono esattamente all'ubicazione dell'immobile.

Vuoi saperne di più rispetto a quest’immobile?

Compila questo modulo e un nostro consulente risponderà ai tuoi quesiti.

Telefono
+39 049 9704568

Immobili correlati

APPARTAMENTO NUOVA COSTRUZIONE CON SPAZIO ABITABILE DI 30MQ

245.000 €

90 mq
2 camere
2 bagni
NUOVA COSTRUZIONE TERRAZZO DI 60MQ!!

290.000 €

108 mq
3 camere
2 bagni
NUOVA COSTRUZIONE, 3 CAMERE + TERRAZZO DI 45MQ !! INGRESSO INDIPENDENTE!!

280.000 €

101 mq
3 camere
2 bagni

Dove trovare i nostri immobili

I nostri partner

  • Rice Box Poke
  • Brew - Caffetteria e Bakery
  • Chiara Mancin - Amministrazioni immobiliari
  • Beauty Studio - Celeste Borgato
  • Forno Zogno